30
$608,998.95 Sale
Listed 5 hours ago
147 Arbour Lake Court NW
· 3
· 2.50
· 2
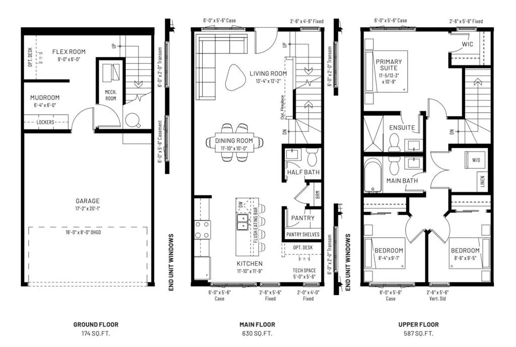
· 1260
Key Facts
Key facts for 147 Arbour Lake Court NW
Property Type
Townhome, 3 (or more) Storey
Parking
Double Garage Attached , Double Garage Attached 2 parking
MLS #
A2261665
Size
1260 sqft
Basement
None
Listed on
-
Lot size
-
Days on Market
-
Year Built
2025
Maintenance Fee
$229.16/mo
Description
Step into a new chapter of life with the Metro Tailored Tiered 18, a canvas for your dreams and aspirations. Whether you're embarking on a career, venturing into homeownership, or seeking to right-size, this townhome offers affordability and flexibility, opening doors to endless possibilities. Exper...ience the true essence of homeownership with three floors of living space, oversized windows, beautiful finishes and an awesome location this townhome sets the stage for your next chapter. Indulge in the thoughtful features, from the spacious patio and expansive kitchen island to the versatile corner flex area and convenient upper floor laundry facilities. With three bedrooms, ample storage space, and a double car garage, this townhome is designed to meet the needs of modern living while allowing you to create your masterpiece. Located in one of Calgary’s Best neighbourhoods Arbour Lake has is it all! A pristine lake brimming with rainbow trout, neighbourhood parks, spectacular mountain views, a regional bike and walkway path carved through rolling hills. Swimming, boating, fishing, ice skating, community events and much more. Your activities are only limited by your imagination. As Northwest Calgary’s only lake community, Arbour Lake offers a quality of living that is truly unparalleled. Photos are representative of the property being built.
Similar Properties (No results)
Room Types
Den
9`0" x 6`0"
Dimensions -
0 sqft
2pc Bathroom
0`0" x 0`0"
Dimensions -
0 sqft
Flex Space
5`0" x 5`6"
Dimensions -
0 sqft
Courtesy of: KIC Realty
Copyright Pillar 9™. All rights reserved. Information is deemed reliable but not guaranteed.